開口部用スライド式仮設手摺ラージテッスル
用途
- 工事工程
- 鉄骨工事
- 商品分類
- 安全関係
特長
- 開口部分墜落・転落防止として、軽量かつ伸縮構造な為取り付け、取り外しが簡単です
- サヤブーツの使用によりサヤ管への生コンの侵入を防ぎ本体を外さなくても打設ができます
- 手摺・脚がスライド式の為、サヤ管のピッチが多少ずれても支障なく取り付けができます
仕様
ラージテッスル1型
| 型式 | ラージテッスル1型 |
|---|---|
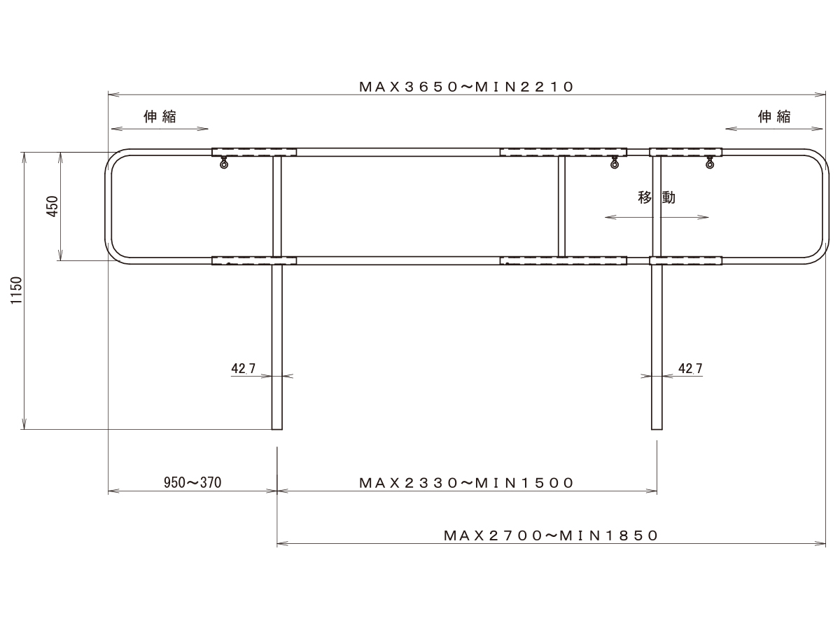
| 寸法(㎜) | W1820~2950×H1150 |
| 自重(kg) | 13 |
ラージテッスル2型
| 型式 | ラージテッスル2型 |
|---|---|
| 寸法(㎜) | W1250~1900×H1150 |
| 自重(kg) | 11 |
ラージテッスル1-A型
| 型式 | ラージテッスル1-A型 |
|---|---|
| 寸法(㎜) | W2210~3650×H1150 |
| 自重(kg) | 18.5 |
ラージテッスル3型
| 型式 | ラージテッスル3型 |
|---|---|
| 寸法(㎜) | W750~1219×H1150 |
| 自重(kg) | 9 |
AL巾木
| 型式 | 1型 | 2型 |
|---|---|---|
| 伸縮幅(㎜) | 1900~3600 | 1050~1900 |
| 自重(kg) | 5 | 4 |
サヤ菅φ60.5
| 寸法 | φ60.5×3.2t |
|---|---|
| L(㎜) | 130以上 |
| スラブ厚(㎜) | 約-10 |
| 自重(kg) | 0.4 |
RCサヤ菅 φ48.6階段
| インサート | W1/2 |
|---|---|
| 自重(kg) | 2 |
RCサヤ菅 φ48.6水平用
| 寸法 | 100×150 |
|---|---|
| インサート | W1/2 |
| 自重(kg) | 2 |
サヤブーツ2型(ラージテッスル専用:緑色)
| 寸法(㎜) | 195 |
|---|---|
| 自重(kg) | 0.2 |
巾木クランプ(φ42.7・φ48.6兼用)
| 自重(kg) | 0.6 |
|---|
テッスルつなぎ金具
| 寸法(㎜) | 406.5 |
|---|---|
| 自重(kg) | 0.6 |
注意事項
- 各規格サイズ以上伸ばして使用しないでください。
- 各ボルトは、確実に締めて使用してください。
- 材料などを立て掛けないでください。
- 墜落制止用器具のロープ・親綱・控え・壁つなぎ・足場板等の支持点又は、資材荷上げの吊り元に使用しないください。
- コンクリート打設前にサヤブーツとサヤ管に隙間がないか確認してから打設してください。
- 支柱間隔は2メートル以下で使用してください。
- はね出し部が支柱間隔の4分の1の長さを超える場合は手すりを接合してください。
フォームが表示されるまでしばらくお待ち下さい。
恐れ入りますが、しばらくお待ちいただいてもフォームが表示されない場合は、こちらまでお問い合わせください。










用途
レンタルの流れ
よくあるご質問
当社商品見分け方
コラム
メルマガ購読
ネットショップ
お問い合わせ