ゲートキャスターゲート
用途
- 工事工程
- 準備工事
- 商品分類
- 安全関係
仕様
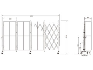
CXGA-20シリーズ
H=2134mm
| 型式 | 寸法(mm) | スパン | 有効開口巾(mm) | 単管芯芯(mm) | 自重(kg) | |
|---|---|---|---|---|---|---|
| CXGA- | 2018 | 1800 | 2 | 1720 | 1990 | 39.0 |
| 2027 | 2700 | 3 | 2440 | 2890 | 52.0 | |
| 2036 | 3600 | 4 | 3160 | 3790 | 65.0 | |
| 2045 | 4500 | 5 | 3970 | 4690 | 79.0 | |
| 2054 | 5400 | 6 | 4780 | 5590 | 92.0 | |
| 2063 | 6300 | 7 | 5590 | 6490 | 105.0 | |
| 2072 | 7200 | 8 | 6400 | 7390 | 119.0 | |
| 2081 | 8100 | 9 | 7210 | 8290 | 139.0 | |
CXGA-15シリーズ
H=1509mm
| 型式 | 寸法(mm) | スパン | 有効開口巾(mm) | 単管芯芯(mm) | 自重(kg) | |
|---|---|---|---|---|---|---|
| CXGA- | 1530 | 3000 | 2 | 2700 | 3190 | 32.0 |
| 1545 | 4500 | 3 | 4000 | 4690 | 44.0 | |
| 1560 | 6000 | 4 | 5300 | 6190 | 56.0 | |
| 1575 | 7500 | 5 | 6600 | 7690 | 68.0 | |
| 1590 | 9000 | 6 | 7900 | 9190 | 79.0 | |
CCGA-20/CCGA-30シリーズ
20シリーズ:H=2134㎜ 30シリーズ:H=3250㎜
| 型式 ( )内はCCGA-30シリーズ品番 |
寸法(mm) | スパン (パネル数) |
有効開口巾(mm) | 単管芯芯(mm) | 自重(kg) ( )内はCCGA-30シリーズ自重 |
|
|---|---|---|---|---|---|---|
| CCGA- | 2018 (3018) |
1800 | 2 | 1720 | 1990 | 58.0 (66.0) |
| 2027 (3027) |
2700 | 3 | 2440 | 2890 | 80.0 (93.0) |
|
| 2036 (3036) |
3600 | 4 | 3160 | 3790 | 102.0 (120.0) |
|
| 2045 (3045) |
4500 | 5 | 3970 | 4690 | 124.0 (147.0) |
|
| 2054 (3054) |
5400 | 6 | 4780 | 5590 | 146.0 (174.0) |
|
| 2063 (3063) |
6300 | 7 | 5590 | 6490 | 168.0 (201.0) |
|
| 2072 (3072) |
7200 | 8 | 6400 | 7390 | 190.0 (228.0) |
|
| ※2081 (※3081) |
8100 | 9 | 7210 | 8290 | 212.0 (255.0) |
|
※付品番は受注対応品になります。
注意事項
- 返却の際は、納入時の状態にしてご返却ください。
- 台風などの強風の際には、全開にするかパネルを外すなど適切に対応してください。
フォームが表示されるまでしばらくお待ち下さい。
恐れ入りますが、しばらくお待ちいただいてもフォームが表示されない場合は、こちらまでお問い合わせください。












用途
レンタルの流れ
よくあるご質問
当社商品見分け方
コラム
メルマガ購読
ネットショップ
お問い合わせ