組立式昇降階段イージーラダー
用途
- 工事工程
- 地下工事
- 商品分類
- 足場関係
特長
- 工事の状況に合わせ、1.9mピッチで段数の増減ができます
- 従来の仮設階段に比べ、設置がスピーディー
- 自立式、吊り下げ式のどちらでも使用可能
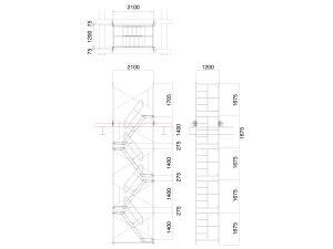
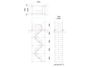
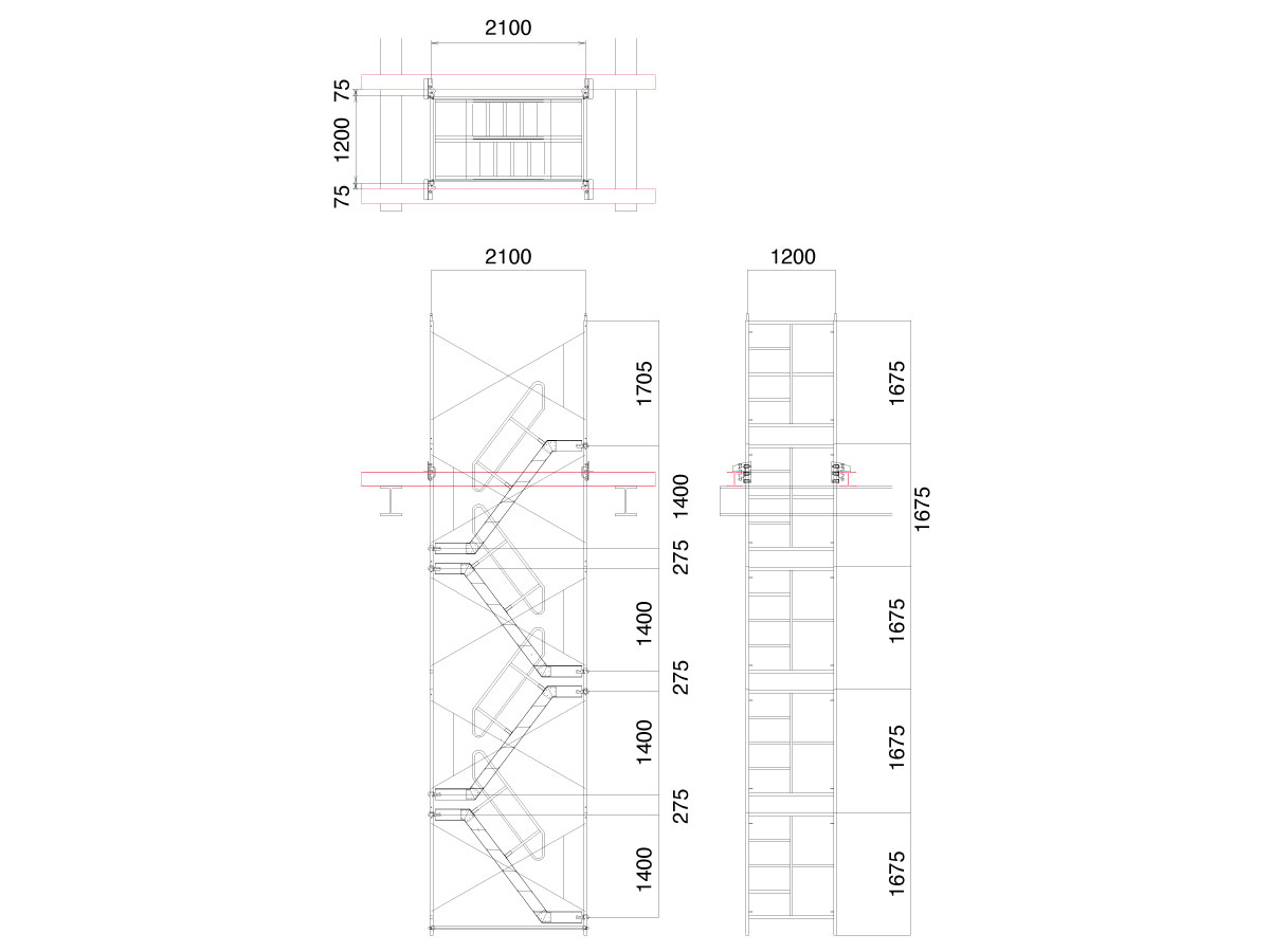
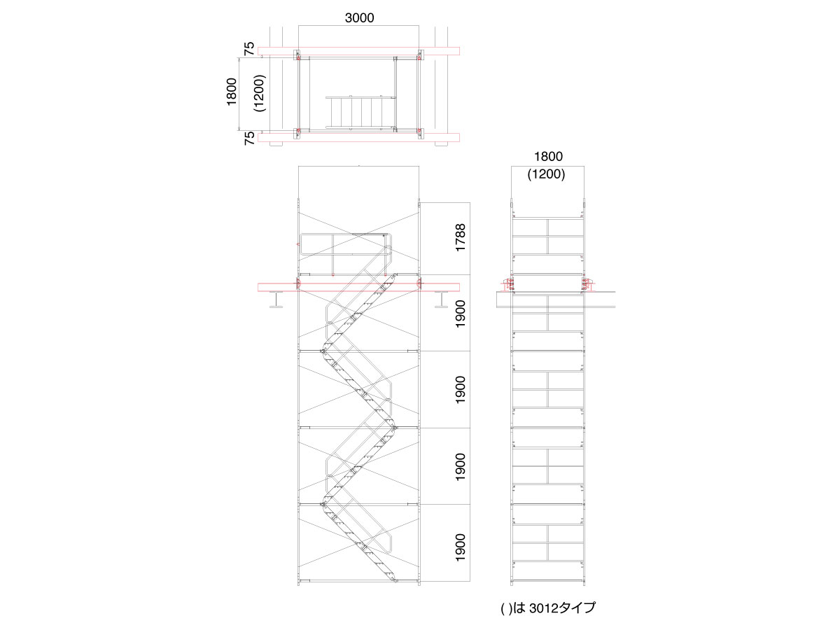
仕様
| 型式 | 許容荷重(kgf) | 寸法(㎜) | 自重(kgf) | 取付金具許容段数 | 自立式 | ||
|---|---|---|---|---|---|---|---|
| 全長L | 全幅W | 全高H | |||||
| EL-2112 | 150/段 | 2100 | 1200 | 1675 | 100/段 | 12段 | 12段 |
| EL-3012 | 150/段 | 3000 | 1200 | 1900 | 154/段 | 10段 | 10段 |
| EL-3018 | 150/段 | 3000 | 1800 | 1900 | 168/段 | 10段 | 10段 |
注意事項
- 受梁は、強度を検討し、満足できるものを使用して下さい。
- 吊り部以外は吊らないで下さい。
- 各ボルト・クランプの締め付けを確認して下さい。
- 3段に1箇所程度振れ止めを取って下さい。
- 四方手摺を踏み台代わりにしないで下さい。
- 昇降以外の用途に使用しないで下さい。
- 許容段数以上で使用したい場合はご相談下さい。
フォームが表示されるまでしばらくお待ち下さい。
恐れ入りますが、しばらくお待ちいただいてもフォームが表示されない場合は、こちらまでお問い合わせください。












用途
レンタルの流れ
よくあるご質問
当社商品見分け方
コラム
メルマガ購読
ネットショップ
お問い合わせ