取付ピース不要鉄骨用吊り足場クロスハンガー
用途
- 工事工程
- 地下工事、鉄骨工事
- 商品分類
- 足場関係
特長
- 取付用ピースを溶接する必要がありません
- 鉄骨フランジ幅に合わせてクリップを締めるだけで調節が完了します
仕様
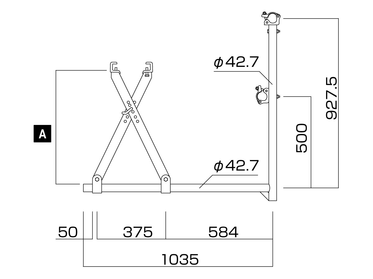
適合フランジと作業床高さ
| 型式 | フランジの厚さ (㎜) |
フランジ幅(㎜) (許容差±5㎜以内) |
作業床高さ(㎜) 【A】 |
許容積載荷重 (kN/kgf) |
自重 (㎏) |
|---|---|---|---|---|---|
| MX-300型 (MC-300型) |
4~32 | 125 | 646 | 片側1.96/200 以内 (等分布荷重の場合) |
18.5 (13.2) |
| 150 | 642 | ||||
| 175 | 636 | ||||
| 200 | 631 | ||||
| 250 | 617 | ||||
| 300 | 604 | ||||
| MX-500型 | 10~42 | 300 | 695 | 18.5 | |
| 350 | 680 | ||||
| 400 | 670 | ||||
| 450 | 655 | ||||
| 500 | 630 |
寸法図
注意事項
- 割付のスパンは、1,800㎜(1829㎜)以下で使用してください。
- サスペンダーの穴は左右同一部分を使用し、クリップのロックは確実にしてください。
- つかみ金具ボルトは、3.43kN・cm(350kg・cm)程度のトルクで締め付けてください。
フォームが表示されるまでしばらくお待ち下さい。
恐れ入りますが、しばらくお待ちいただいてもフォームが表示されない場合は、こちらまでお問い合わせください。










用途
レンタルの流れ
よくあるご質問
当社商品見分け方
コラム
メルマガ購読
ネットショップ
お問い合わせ