外周部養生用ブラケットベランダブラケット(外周部養生用)
用途
- 工事工程
- 外装工事
- 商品分類
- 機械工具関係
特長
- ベランダ部の型枠作業、仕上作業または改修工事等に最適
- 従来の枠組足場を使用せずにベランダ部よりハネ出して使用し、盛り替え可能
- 1F(下層階)がすっきりし、搬入・資材・通路等のヤードがより確保できます
- 改修工事等、狭い場所や、一部にだけ足場を確保したい時に有効
外周部養生用ブラケット
- 従来の垂直ネット養生を単管にてユニット化し、クレーンにて盛り替えPCベランダの高層マンションに最適
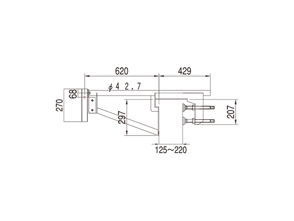
仕様
| 品名 | 自重(kg) | 先端許容荷重(kg) | はさみ巾(㎜) |
|---|---|---|---|
| ベランダブラケット450 | 4 | 250 | 100〜250 |
| ベランダブラケット630 | 6 | 350 | 250〜460 |
| ベランダブラケット900 | 13 | 350 | 260〜620 |
ブレースカプラー
注意事項
- 施工条件により水平力を受ける場合は、壁つなぎを必ず設けてください。
- ベランダに加わる外力を検討し、ベランダ強度を確認してください。
- 各ボルトは確実に締めてください。
- ユニット間の隙間等生じる場合は、ネット結束等により養生してください。
- 縦パイプ間のスパンは2メートル以内にしてください。
- 計画施工は一側足場の基準に従ってください。
- 養生ネットは15㎜目以上の物を使用してください。
【関係法令】労働安全衛生規則 第9章 第1節 第518条 第519条 第10章 第2節 第559条~第567条 第570条~第573条
フォームが表示されるまでしばらくお待ち下さい。
恐れ入りますが、しばらくお待ちいただいてもフォームが表示されない場合は、こちらまでお問い合わせください。






用途
レンタルの流れ
よくあるご質問
当社商品見分け方
コラム
メルマガ購読
ネットショップ
お問い合わせ