柱溶接用足場コラムステージ(RT)
 用途
用途
					- 工事工程
- 地下工事、鉄骨工事
- 商品分類
- 足場関係
 仕様
仕様
				(柱溶接用足場)ロータリータイプ
					| 積載荷重(kg) | ステージ取付柱寸法(㎜) | 
|---|---|
| 150 | RT3型 | 
| (□200〜700) (□400〜900) | 
コラムRT3型1セットの構成数量
| 型式 | 品名 | 自重(kg) | 数量 | 
|---|---|---|---|
| RT3L | コラムRT3型(L)本体 | 16.0 | 1 | 
| RT3R | コラムRT3型(R)本体 | 11.0 | 1 | 
| RT3T | コラムRT3型手摺 | 5.0 | 2 | 
| SSJT1100 | コラムRT連結手摺1100 | 4.1 | 1 | 
| TP469 | コラムRT取付ピン 469L | 2.1 | 2 | 
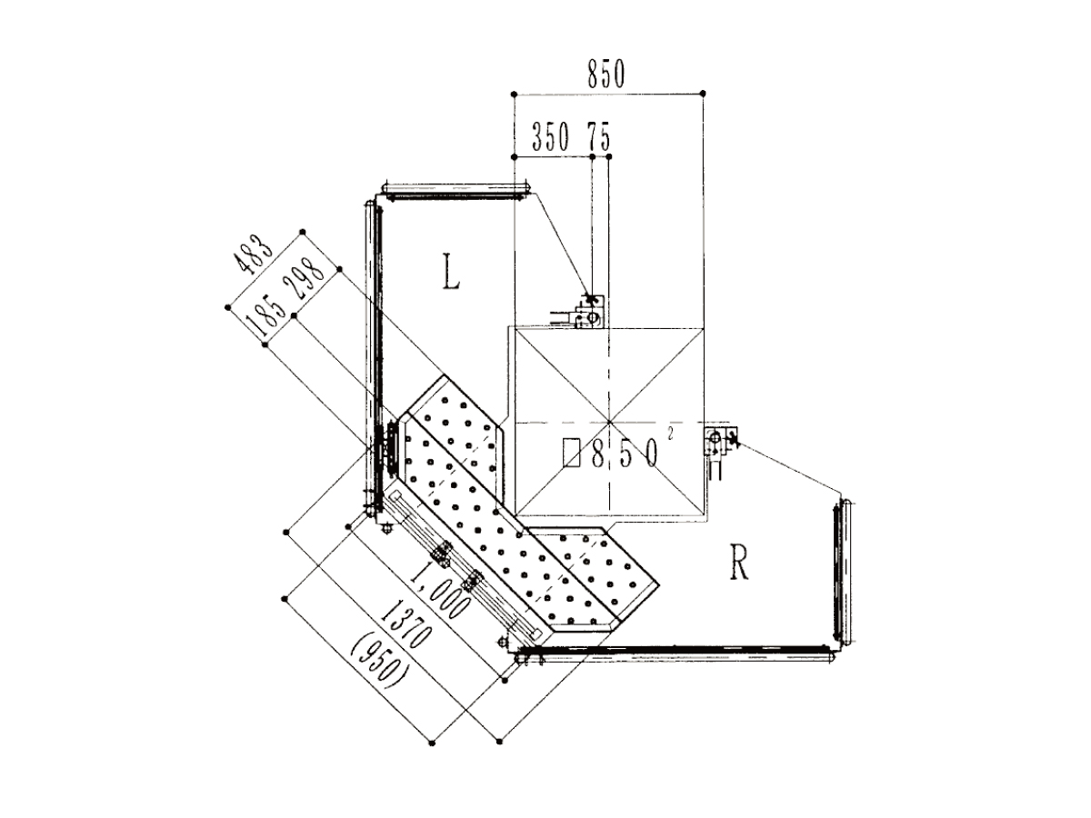
ロータリータイプ(コーナー用)
					| 積載荷重(kg) | ステージ取付柱寸法(㎜) | 
|---|---|
| 150 | (□400〜1000) | 
コラムRTコーナータイプ1セットの構成数量
| 型式 | 品名 | 単重(kg) | 数量 | 
|---|---|---|---|
| RTCL | コラムRTコーナー(L)本体 | 21.9 | 1 | 
| RTCR | コラムRTコーナー(R)本体 | 18.5 | 1 | 
| RTCTA | コラムRTコーナー手摺(A) | 2.5 | 2 | 
| RTCTB | コラムRTコーナー手摺(B) | 6.8 | 2 | 
| TP469 | 取付ピン 469L | 2.1 | 2 | 
3型用手摺
					FBR65用連結手摺
| 型式 | 品名 | 自重(kg) | 
|---|---|---|
| FBR65T | FBR65 延長手摺 1980 | 3.4 | 
コラムRT3型
| 型式 | 品名 | 自重(kg) | 
|---|---|---|
| SSJT90 | コラム連結手摺 900 | 2.3 | 
| SSJT1100 | コラムRT連結手摺 1100 | 2.7 | 
ロータリー3型用渡し板(L=900 / L1100)
					コラムRT3型用渡し板仕様
| 型式 | 品名 | ステージ取付柱寸法 | 
|---|---|---|
| RT3W09 | コラムRT3型渡し板 900L(N) | □200〜700 | 
| RT3W11 | コラムRT3型渡し板 1100L | □400〜900 | 
ロータリータイプ ウイングステージ
					ウイングステージ WS 40-55(標準品)@RTC
※RT本体(L)に装備
ウイングステージ WS 60-80@RTC1
●柱周囲の隙間は適宜な養生をすること。(客先所掌)
ウイングステージ WS 85-100@RTC2
ロータリータイプ コラム先付ピース
					コラム先付ピース(販売品)
| 型式 | 品名 | 自重(kg) | 
|---|---|---|
| RTPU12 | コラムRT 先付ピース 12T 上部用 | 1.03 | 
| RTPL9 | コラムRT 先付ピース 9T 下部用 | 0.93 | 
丸柱用特注ピース参考型式(販売品)
| 参考型式 | 柱径(㎜) | 
|---|---|
| RTP40 | φ400 | 
| RTP45 | φ450 | 
| RTP50 | φ500 | 
| RTP55 | φ550 | 
| RTP60 | φ600 | 
| RTP65 | φ650 | 
| RTP70 | φ700 | 
| RTP75 | φ750 | 
| RTP80 | φ800 | 
| RTP85 | φ850 | 
| RTP90 | φ900 | 
| RTP95 | φ950 | 
| RTP100 | φ1000 | 
 注意事項
注意事項
				- 安全帯はコラム手摺からとらないでください。また、手摺に足をかけたり、昇降用に利用しないでください。
フォームが表示されるまでしばらくお待ち下さい。
恐れ入りますが、しばらくお待ちいただいてもフォームが表示されない場合は、こちらまでお問い合わせください。


 
			

 用途
用途 
							
						 
							
						 
							
						 
							
						 
							 
							 
							 
							 
							
						 
							
						 
							 
							 
							 
							 
							 
							 
							 
							 
							 
							 
							 
							 レンタルの流れ
 レンタルの流れ よくあるご質問
 よくあるご質問 当社商品見分け方
 当社商品見分け方 コラム
 コラム メルマガ購読
 メルマガ購読 ネットショップ
 ネットショップ 
				 
				 お問い合わせ
 お問い合わせ