ユニット式荷受用構台荷受フォーム
用途
- 工事工程
- 外装工事
- 商品分類
- 荷役・搬送関係
特長
安全・スピーディな組立解体作業
荷受けフォームは、地上面でユニットを組み立てた後、クレーンで足場に取り付ける架設システムを採用。
安全かつスピーディな架設と解体作業を実現しました。
足場の2段目から取付可能。もちろん足場上でも手作業による架設・解体作業が安全・簡単に行えます。
盛り替えも解体・再架設不要
荷受けフォームを解体することなく、クレーンでそのまま移動・設置できます。
従来の、解体して再架設という二度手間がなくなり、作業効率が飛躍的に向上しました。
また、設置後のスパン変更もユニット式により、クレーン使用方式・従来方式を問わず、安全・簡単に増減ができます。
常に一定した強度を提供
ユニット式の組み立てにより、組み手によるステージのばらつきがなく、いつでも安定した強度が得られます。
面倒な部材の拾い出しや、設置の度々の強度計算も不要になりました。
仕様
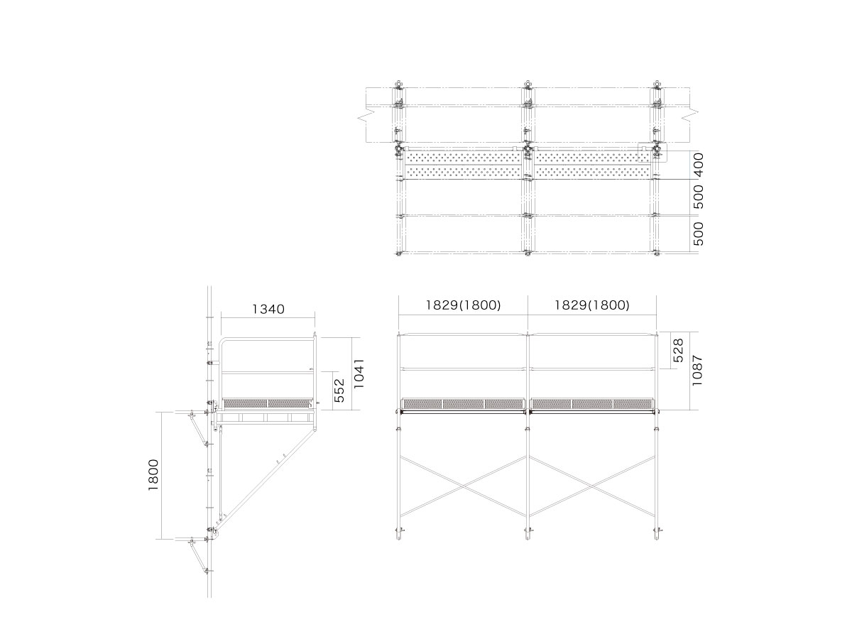
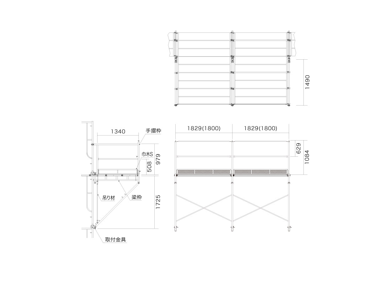
全体図(2スパン)
( )内はメーターサイズ
許容積載荷重表(単位/スパン)
| 建物の幅(㎜) | 枠組足場 | アルバロス | ||
|---|---|---|---|---|
| 足場の層数 | 許容積載荷重(kN/kgf) | 足場の層数 | 許容積載荷重(kN/kgf) | |
| 1200・1219 | 2層以上13層以下 | 7.35(750) | 2層以上8層以下 | 6.86(700) |
| 14層以上20層以下 | 5.88(600) | 9層以上12層以下 | 5.88(600) | |
| 21層以上26層以下 | 4.41(450) | 13層以上17層以下 | 4.90(500) | |
| — | — | 18層以上21層以下 | 3.92(400) | |
| — | — | 22層以上24層以下 | 3.43(350) | |
| 900・914 | 2層以上11層以下 | 7.35(750) | 2層以上5層以下 | 6.86(700) |
| 12層以上20層以下 | 5.88(600) | 7層以上10層以下 | 5.88(600) | |
| 21層以上26層以下 | 4.90(500) | 11層以上16層以下 | 4.90(500) | |
| — | — | 17層以上22層以下 | 3.92(400) | |
| — | — | 23層以上24層以下 | 3.43(350) | |
| 600・610 | 2層以上10層以下 | 4.90(500) | 2層以上6層以下 | 5.88(600) |
| 11層以上23層以下 | 3.92(400) | 7層以上14層以下 | 4.90(500) | |
| 24層以上26層以下 | 2.94(300) | 15層以上22層以下 | 3.92(400) | |
| — | — | 23層以上24層以下 | 3.43(350) | |
- ※数値(層、高さ共)は、使用する機材、足場の組立方法及び積載荷重等の条件によって変動するため、目安としてください。なお、枠組足場には先行手すり枠、幅木等を含んでいません。
構成部材表
枠組足場用
| 寸法 | 商品名 | 型式 | 自重(kg) | 1スパン | 2スパン | 3スパン |
|---|---|---|---|---|---|---|
| 1800 インチ・メーター |
筋違 | X1812 | 4.0 | 1 | 2 | 3 |
| 布板 | HK6 | 13.5 | 3 | 6 | 9 | |
| 手摺 | NFBR(M)18 | 2.3 | 2 | 4 | 6 | |
| 幅木L | NFHP(M)18 | 6.3 | 1 | 2 | 3 | |
| 幅木S | NFHPS | 4.0 | 2 | 2 | 2 | |
| 梁枠 | NFS | 15.5 | 2 | 3 | 4 | |
| 手摺枠 | NFG | 11.2 | 2 | 2 | 2 | |
| 手摺柱 | NFAP | 3.3 | 0 | 1 | 2 | |
| 取付金具 | NFK | 1.6 | 4 | 6 | 8 | |
| 吊り材 | NFT | 1.2 | 2 | 3 | 4 |
- 他のサイズとの併用でご使用できます。
- メーターサイズ 筋違・布板は別途ご用意ください。
アルバトロス用
| 寸法 | 商品名 | 型式 | 自重(kg) | 1スパン | 2スパン | 3スパン |
|---|---|---|---|---|---|---|
| 1829 インチ |
筋違 | X1812※ | 4.0 | 1 | 2 | 3 |
| 布板 | HK6※ | 13.5 | 2 | 4 | 6 | |
| 手摺 | NFBR18※ | 2.3 | 2 | 4 | 6 | |
| 幅木L | NFHP18※ | 6.3 | 1 | 2 | 3 | |
| 幅木S | NFHPS | 4.0 | 2 | 2 | 2 | |
| 梁枠 | NFS | 15.5 | 2 | 3 | 4 | |
| 手摺枠 | JNFG | 11.6 | 2 | 2 | 2 | |
| 手摺柱 | NFAP | 3.3 | 0 | 1 | 2 | |
| 取付金具 | JNFK | 1.7 | 4 | 6 | 8 | |
| 吊り材 | NFT | 1.2 | 2 | 3 | 4 | |
| 隙間板 | JNFHK6※ | 13.2 | 1 | 2 | 3 | |
| 布板 | JR1829※ | 4.4 | 1 | 2 | 3 |
- 他のサイズの場合は※の品番が変わります。
- 強化方づえ、両面先行手すりを設置してください。
フォームが表示されるまでしばらくお待ち下さい。
恐れ入りますが、しばらくお待ちいただいてもフォームが表示されない場合は、こちらまでお問い合わせください。






用途
レンタルの流れ
よくあるご質問
当社商品見分け方
コラム
メルマガ購読
ネットショップ
お問い合わせ