平パレット用吊柵パレリフト
用途
- 工事工程
- 鉄骨工事
- 商品分類
- 機械工具関係
パレット吊り下げ時の荷崩れによる事故を防げるパレット吊り枠。
特長
- パレットに合わせてサイズ変更が可能
- 組立、解体が簡単
- 折り畳み式で保管スペースの削減に貢献
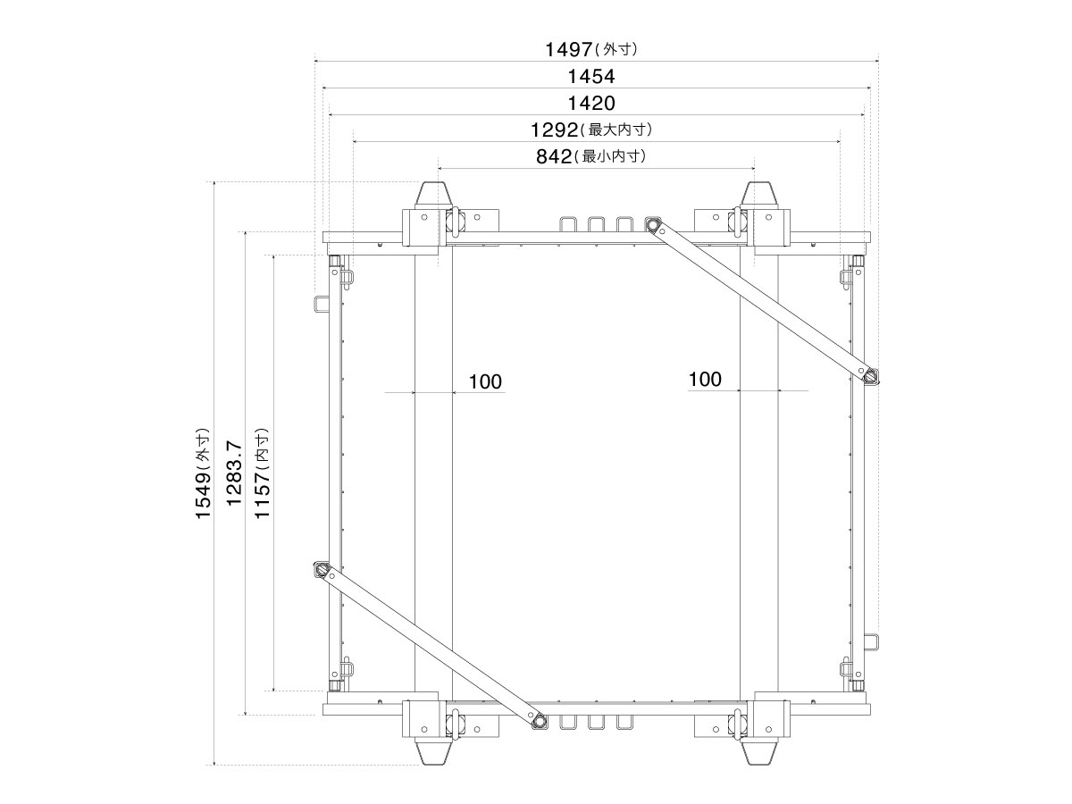
仕様
パレリフト
| 外寸(㎜) | 内寸(㎜) | 許容荷重(t) | 自重(kg) | ||||
|---|---|---|---|---|---|---|---|
| 幅 | 奥行 | 高さ | 幅 | 奥行 | 高さ | ||
| 1497 | 1549 | 1112 | 1157 | 4段階 842 992 1142 1292 |
850 | 1.5 | 118 |
使用可能パレット
①1100×1100㎜以下の木製平パレット
②1100×1100㎜以下のプラスチック製パレットで、フォーク材差込口高さが50㎜以上かつ差込幅が以下の寸法のもの
注意事項
- パレリフト本体とパレットの間に、荷より大きい隙間ができないようにサイズを調整してご使用ください。
- パレリフトの網目は100㎜です。それより小さい荷は必ず箱や袋等に収納してください。
- パレリフトの高さより低く積載してください。
各種ファイルダウンロード
フォームが表示されるまでしばらくお待ち下さい。
恐れ入りますが、しばらくお待ちいただいてもフォームが表示されない場合は、こちらまでお問い合わせください。








用途
レンタルの流れ
よくあるご質問
当社商品見分け方
コラム
メルマガ購読
ネットショップ
お問い合わせ